Tennishalle TCF MAK
Ersatzneubau der Tennisanlage TCF MAK — Marktredwitz
Bauherr: Tennisclub Fichtelgebirge e.V.
Beauftragung: Direktauftrag
Bearbeitung: Moritz und Peter Hilgarth
Status: in Planung
Typologie: Sportbau
Von-Cramm-Weg 5, 95615 Marktredwitz

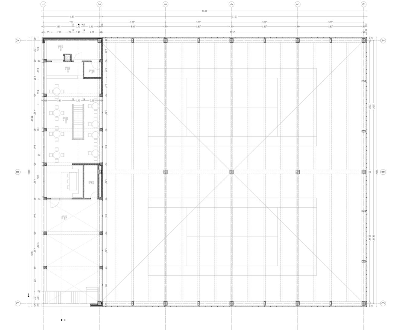
Die neue Tennisanlage umfasst mehrere Aussenplätze sowie eine Doppelhalle, ergänzt durch einen Umkleide- und Gastronomietrakt. Das Gebäude zeichnet sich durch eine effiziente Hybridkonstruktion aus Beton im Hallenbereich und Holz im Sozialtrakt aus. Durch die wirtschaftliche, nachhaltige und auf seine Grundeigenschaften konzentrierte Bauweise, fügt sich der Neubau zum einen natürlich in die Umgebung ein und ist zum anderen Orientierungspunkt sowie Aushängeschild rund um den Auenpark Marktredwitz.
“mit einer nachhaltigen Bauweise wird dem Tennisareal neues Leben eingehaucht“
MORITZ HILGARTH














