Erweiterung Berufsschule — Bülach
Erweiterungsneubau Berufsschule Bülach
Wettbewerb 2025
Auslober: Baudirektion Kanton Zürich, vertr. d. Kantonales Hochbauamt Zürich
Team: Moritz u. Peter Hilgarth, Alexa Reinel
Kollaboration:
WaltGalmarini AG: Bauingenieur
WSP Suisse AG: Gebäudetechnik, Nachhaltigkeit und Brandschutz
LandschaftsArchitektur — Dipl.- Ing. (FH) Marion Schlichtiger
Typologie: Bildung, Sport
Kantonsschule Romanshorn, Schwerzgruebstrasse 28, 8180 Bülach — CH

Der Bestandsbau wurde im Zeitalter der Hightech-Architektur erstellt. Ziel war es einen Neubau zu entwerfen, welcher auf die aussergewöhnlichen Merkmale des Bestands eingeht, ohne sich diesem aufzudrücken. Vielmehr sollte der Neubau in den Kontext unseres Zeitgeistes hineininterpretiert werden. Durch eine nachhaltige, effiziente und wirtschaftliche Bauweise, ermöglicht durch modernste Bautechniken und Materialien, wird der HighTech-Gedanke wieder aufgegriffen und neu definiert.
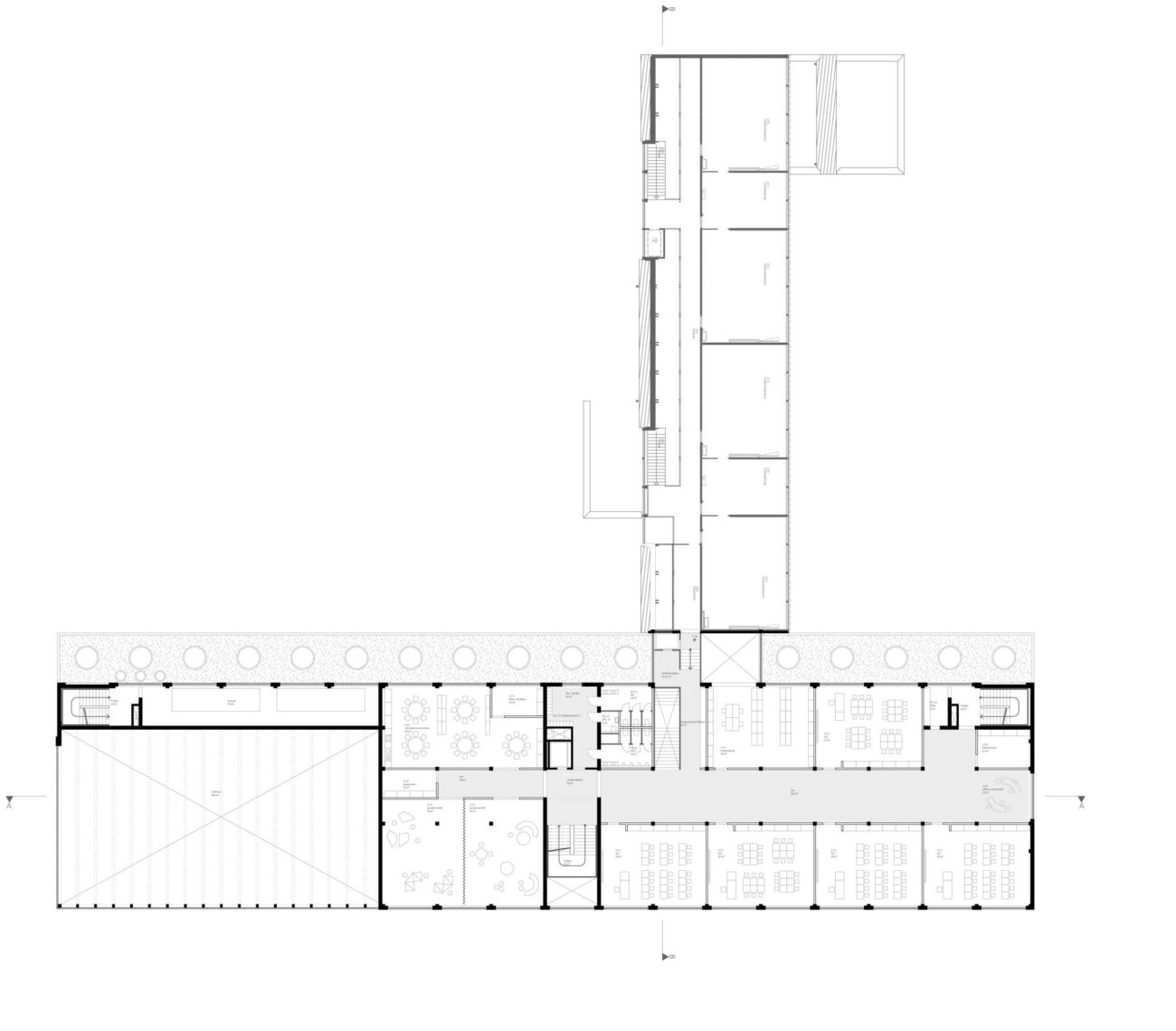
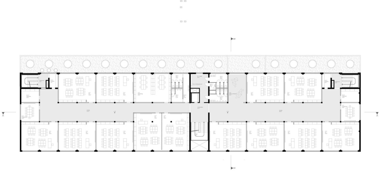
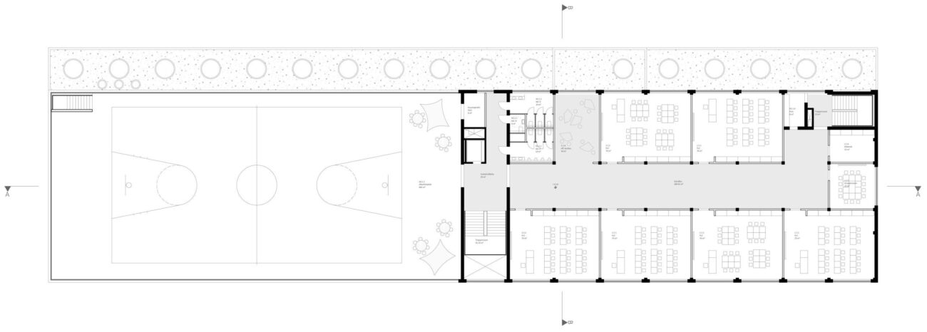
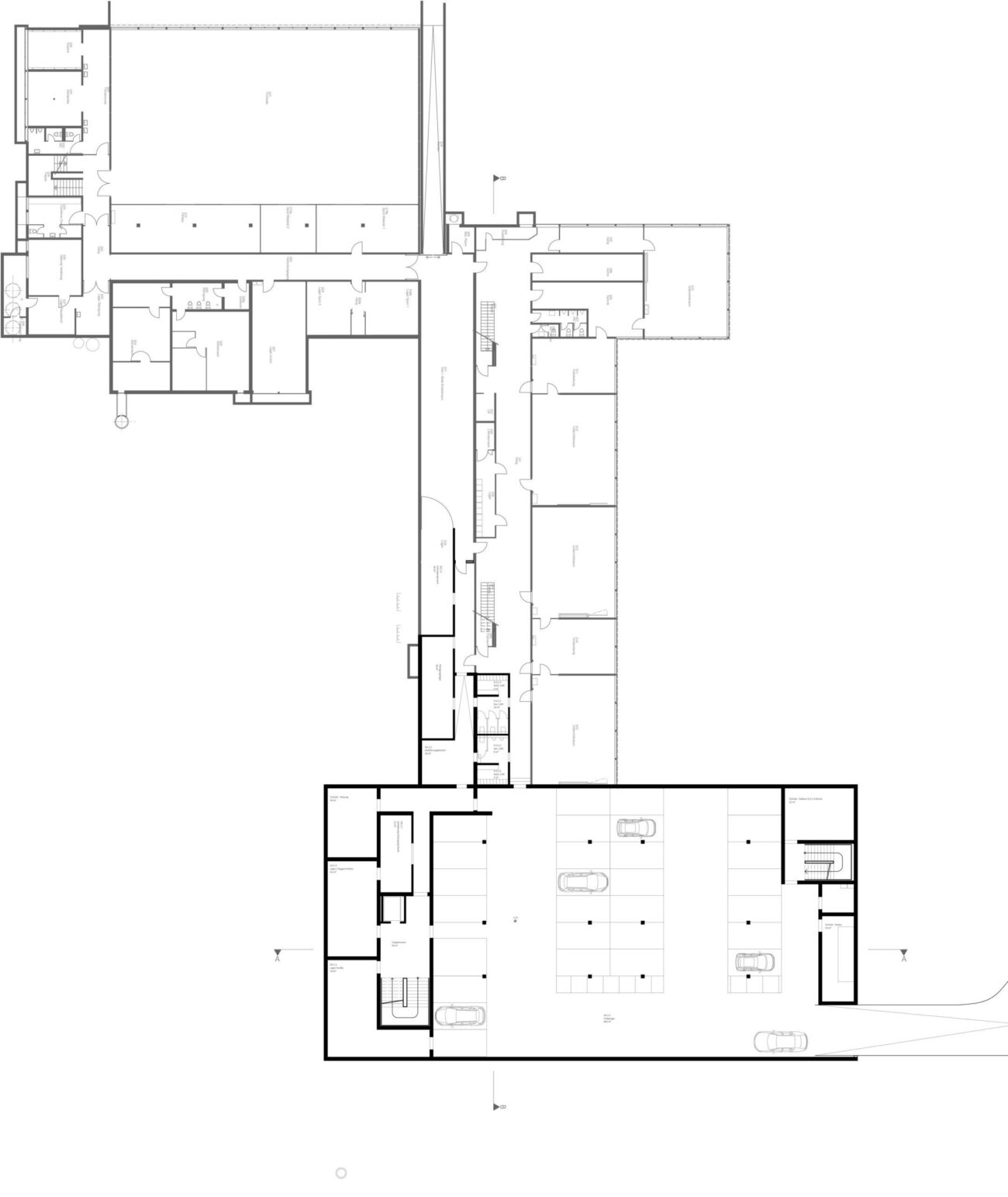
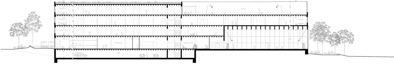
Der Projektname ist Konzept und Programm: eine Verbindung zwischen alt und neu, ein Knotenpunkt für das Areal und die Gemeinschaft. Der Bestandsbau lässt diese Verbindung nur an der östlichen Gebäudekante zu. Daher wurde hier ein langgezogener rechteckiger Baukörper platziert, welcher die schmale zu bebauende Grundfläche zu seinem Vorteil nutzt und das Schulareal an dieser Stelle von Nord nach Süd in voller Länge verknüpft. Um sich dem Bestand nicht aufzudrängen, setzt sich das Volumen ab dem 1. Obergeschoss um eine Flurbreite zurück.
Wie bereits erwähnt spielt das Thema Verknüpfung und Knotenpunkt eine wichtige Rolle. Das Erdgeschoss ist durch einen Erschliessungsflur mit dem Bestand verbunden und erlaubt einen fliessenden und barrierefreien Übergang zwischen beiden Gebäuden. An diese Bewegungsfläche, welche sich im EG über die komplette Westfassade erstreckt, sind ausserdem die Eingänge zu Schule und Sport, sowie die innenliegenden Zugänge zu den verschiedenen Nutzungen angeschlossen.



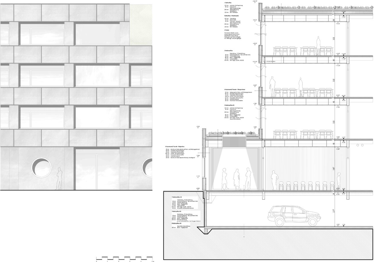
Das Gebäude ist als Rasterbau mit Holz-Beton-Verbund-Rippendecken aufgebaut. Die Stützen sind in Vollholz ausgebildet. Die Wandflächen zwischen den Stützen werden als vorgefertigte Holzrahmenbauelemente angefertigt.
Durch die gerillten und sehr strukturierten Fassadenelemente des Bestandes wirkt dieser sehr dicht und massiv jedoch in seinem Erscheinungsbild auch elegant. Die Fassade des Neubaus sollte diese Eleganz aufnehmen. Sie besteht zum einen aus vorgehängten, hinterlüfteten Metallelementen und zum anderen aus Solarpanelen im Sturz-/Brüstungsbereich. Durch die glatte und glänzende Oberflächenstruktur, sowie der flächigen Verteilung wirkt der Neubau homogen und bildet das Pendant zum strukturierten Bestandsbau. Die eloxierten Aluminium-Fassadenplatten sind zwar in ihrer Anschaffung teurer, jedoch benötigen sie kaum Wartung, sind sehr robust, witterungs- und korrosionsbeständig und weitaus langlebiger als konventionelle Fassadenpaneele. Durch den Glanz der Oberfläche wird die Umgebung, sowie der Bestandsbau gespiegelt und der Neubau nimmt sich noch ein Stück zurück.
Der Neubau kann mit Minergie-P-Eco und SNBS Gold zertifiziert werden. Durch die eloxierte Aluminiumfassade wird das Erwärmungspotenzial gering gehalten. Alle Räume mit einer Nutzung sind mit ausreichend Tageslicht ausgestattet und lassen eine flexible Nutzung zu.















