Ersatzneubau Kreisbauhof — Landkreis Tirschenreuth
Ersatzneubau Kreisbauhof — Landkreis Tirschenreuth
Ersatzneubau Kreisbauhof — Büro- und Werkstattgebäude
Bauherr: Landkreis Tirschenreuth
Beauftragung: 1. Platz VgV-Verfahren mit vorherigem Teilnahmewettbewerb
Bearbeitung: Moritz Hilgarth, Peter Hilgarth
Bauzeit: in Planung
Typologie: Verwaltungsbau
Mitterteicher Str.49, 95643 Tirschenreuth

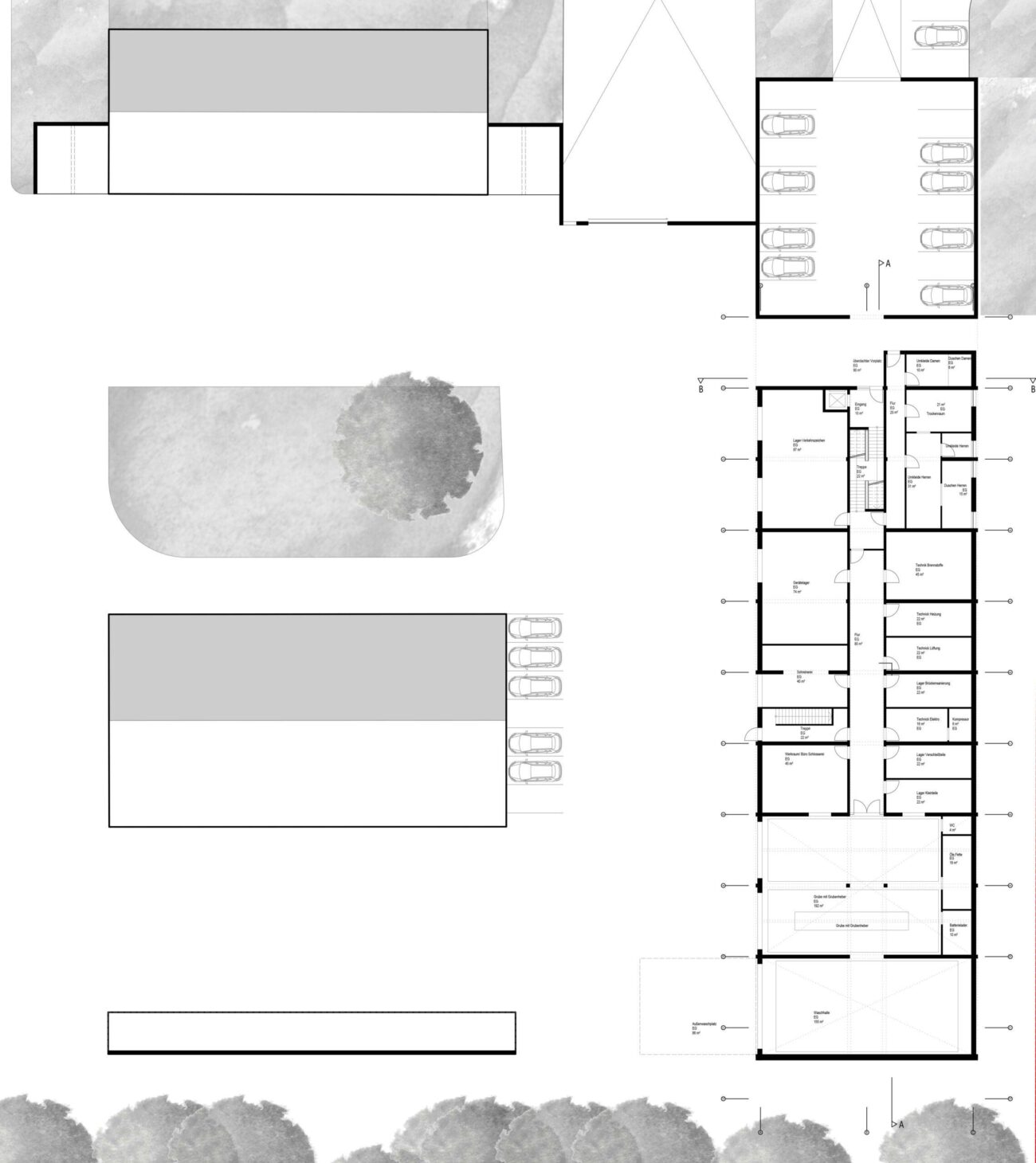
Das bestehende Bauhofgebäude soll schrittweise rückgebaut werden um einen neuen Kreisbauhof zu erstellen, welcher den heutigen Anforderungen gerecht werden kann. Der Neubau beinhaltet Werkstatt-und Lagerflächen im Erdgeschoss, sowie Verwaltungs-bzw. Büroräume im Obergeschoss. Es war das Ziel einen selbstbewussten für sich stehenden Baukörper zu entwerfen, welcher durch seine Einfachheit im Aufbau, der Konstruktion sowie der Funktionsabläufe überzeugt.
Das Gebäude lässt einen fließenden Übergang des täglichen Arbeitsprozesses von innen nach außen zu. Die Holz/Beton Hybridkonstruktion ist durch ein klares Raster von Betonstützen und ‑trägern definiert. Dieses wird durch vorgefertigte massive Brettsperrholzwände bzw. ‑decken in Form von vertikalen und horizontalen Schotten ergänzt. Dadurch kann ein effektiver schneller Bauprozess ermöglicht werden. Durch die klare und einfach gehaltene Struktur sind die Räume effizient und flexibel in ihrer Nutzung. Diese Klarheit wird auch nach außen in der Fassade wiedergespiegelt. Auf eine Materialschlacht wird verzichtet, die auf 2–3 Materialien reduzierte Fassade konzentriert sich auf seine Grundanforderungen und bildet die Konstruktion nach außen hin ab.














