Erweiterung Kantonsschule — Romanshorn
Erweiterungsneubau Kantonsschule
Wettbewerb 2024
Auslober: Staat Thurgau, vertr. d. Kantonales Hochbauamt Thurgau
Team: Moritz u. Peter Hilgarth, Alexa Reinel
Kollaboration: LandschaftsArchitektur — Dipl.- Ing. (FH) Marion Schlichtiger
Typologie: Bildungsbau
Kantonsschule Romanshorn, Weitenzelgasse 12, 8590 Romanshorn-CH

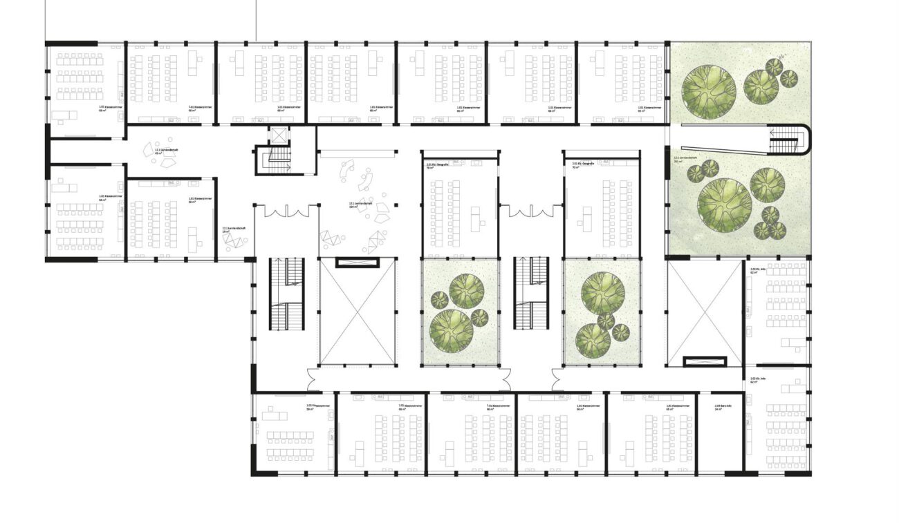
Ziel unseres Entwurfes ist die stetig gewachsene Schulanlage im Sinne eines «Weiterbauens» fortzuführen, sinnvoll zu erweitern und nachhaltig zu verdichten. Das heutige Schulareal liegt in Mitten des Bildungs-und Bewegungscampus. Das bestehnde Hauptgebäude definiert sich als ein ganzheitlicher Schul-und Sporttrakt, welcher durch ein grossflächiges Erdgeschoss eingesäumt wird und selbstbewusst zwei Hochpunkte Richtung Osten und Norden auf dem Areal markiert. Ergänzt wird der zentrale Schulbau durch kleinere Gebäude wie dem Schulpavillion. Die Erweiterung sieht vor, die Bewegungsabläufe der Schule, sowie des gesamten Campus aufzunehmen und durch eine kluge Platzierung der Neubauten die bereits vorhandene Zonierung zu konkretisieren. Der neue Schulbau wird entlang der Weitenzelgstrasse platziert. Ebenfalls Richtung Osten orientiert gliedert sich der Neubau zu den bereits bestehenden Hochpunkten ein. Die Platzierung ermöglicht es einen von der Strasse abgeschirmten landschaftlichen Freiraum zu schaffen. Zusammen mit dem eingeschossigen Neubau der Mensa/ dem Hörsaal wird zudem der Zugang zum Schulhof zoniert. Der neue Mensabau gliedert sich hierbei durch seine Eingeschossigkeit ideal in die bestehende Struktur ein.
Der Bauperimeter weisst eine natürliche Topografie auf, welche in zwischen Neu-und Bestandsbau um 1.00 Meter fällt. Die Höhendifferenz wird durch einen Verbindungsbau, welcher die Mediathek beinhaltet, geschickt aufgefangen. Zuletzt wird der Biologietrakt an Südöstlicher Ecke des Bestandbaues durch ein Geschoss erweitert. Somit lassen sich die Neubauten gut in die Gesamtanlage integrieren, und führen die Körnung des Bestands über dem Sockelbereich sinnvoll fort.

Die Neubauten markieren den neuen Eingangsbereich zum gesamten Schulareal. Über ein Gefälle gelangt man dann auf den Schulhof. Die Hauptzugänge sind durch die Gebäudeplatzierung rund um den Schulhof angeordnet. Die flächenintensivsten, öffentlichen Räume werden alle in den Sockelgeschossen angeordnet. Den Nutzungen entsprechend werden die Sockelgeschosse mit einer überhöhten Raumhöhe von 4.5 Meter projektiert. Über dem Schulneubau befinden sich 2 weitere Voll- und ein Attikageschoss welche ausschliesslich den hohen Bedarf an Klassenzimmer abdecken. Die Fläche wird im Innenbereich durch Atrien und Deckendurchbrüche aufgelockert. Diese zentralen Zonen eignen sich ausserdem ideal für Lernlandschaften und Aufenthaltsbereiche.
Der Neubau wird als Holz-Beton Hybridbau projektiert. Die erdberührten Bauteile und die Untergeschosse sind aus niederfestem Recyclingbeton mit CO2-reduziertem Zement. Ein Skelett aus raumsparenden höherfesten Betonstützen und Unterzügen ergänzt mit einer leichten Holzverbundflachdecke. Vorfabrikation ermöglicht auch bei den höherfesten Elementen die Verwendung von langsam abbindenden Betonen mit geringeren Treibhausemissionen bei gleichzeitig hoher Baugeschwindigket. Mit den nachhaltigen Brettsperrholzdecken, welche verschiedentlich auch im Hochhausbau eingesetzt werden, wird durch die geringe Bauhöhe und flache Untersicht Platz für eine einfache Installierung geschaffen und Gewicht gespart, was über die Geschosse aufsummiert deutlich kleinere Fundationen ermöglicht und damit zusätzlich die Umweltbelastung reduziert. Das strenge, aber grosszügige Raster und der Einsatz von robusten, dauerhaften Materialien wo sie durch die Nutzung am stärksten beansprucht werden garantieren höchste Flexibilität für Nutzungsänderungen und eine lange Lebensdauer. Eine einfache, klar strukturierte Tragkonstruktion mit direkter und konsistenter Lastabtragung trägt zur Wirtschaftlichkeit des Gebäudes bei.
Die Fassade wird als selbsttragender Holzelementbau projektiert. Ein fein gegliedertes Fassadenbild bildet sich ab dem 1. Obergeschoss ab und symbolisiert das Weiterbauen auf einem starken Fundament in Form eines Sockelgeschosses aus Beton. Die in die Fenster integrierten Lüftungsflügel dienen einerseits der natürlichen Belüftung sowie der Nachtauskühlung. Das Holz wird naturbelassen und tritt dadurch in Dialog zum Bestandsgebäude. Gleichzeitig verhindert die helle Fassadenfarbe eine sommerliche Überhitzung der Fassadenflächen. Die fünfte Fassade, die Dachflächen, werden intensiv begrünt und dienen den Schülern auf unterschiedlichsten Niveaus als Pausenplatz, Schulgarten etc. und bereichert als Blickpunkt das umliegende Quartier.









